CONSTRUCTEUR DE MAISONS
en Auvergne-Rhône-Alpes [Rhône - Ain - Isère - Loire]

Plus de 10 000 maisons neuves construites dans le Grand-Sud

Topscroll

RECHERCHER...

Par référence :

Critères avancés :

MODÈLE DE MAISON TOURA

Modèle traditionnel Étage Gamme personnalisable Plan maison 2D

Maison traditionnelle Toura

Une maison individuelle qui allie modernité et confort

La façade de notre modèle de maison Toura vous attire par son design à la fois moderne et convivial ? Vous ne pourrez en effet qu'être séduit par ses lignes droites très contemporaines et sa toiture en tuiles plus chaleureuse. Pour vous accueillir un porche vous attend afin de créer une entrée accueillante et pratique en cas de pluie. A l’intérieur, la grande pièce de vie ouverte sur la cuisine vous tend les bras. Elle sera le lieu de tous les moments agréables en famille et entre amis. Ce grand espace ouvert au rez-de-chaussée est également baigné de lumière naturelle grâce aux grandes ouvertures traversantes. Tous les aménagements de cette maison individuelle sont pensés pour vous faire gagner en confort et en fonctionnalité. Pour compléter cet étage vous bénéficiez également d’un WC indépendant et d’un accès direct sur le garage. En empruntant l'escalier, vous accédez ensuite au second étage qui comprend trois chambres dont un espace dédié aux parents avec un grand dressing intégré. Une salle de bains avec douche et baignoire vient également compléter ce coin nuit où tout le monde trouvera sa place.

Plan en 2D du Modèle Toura

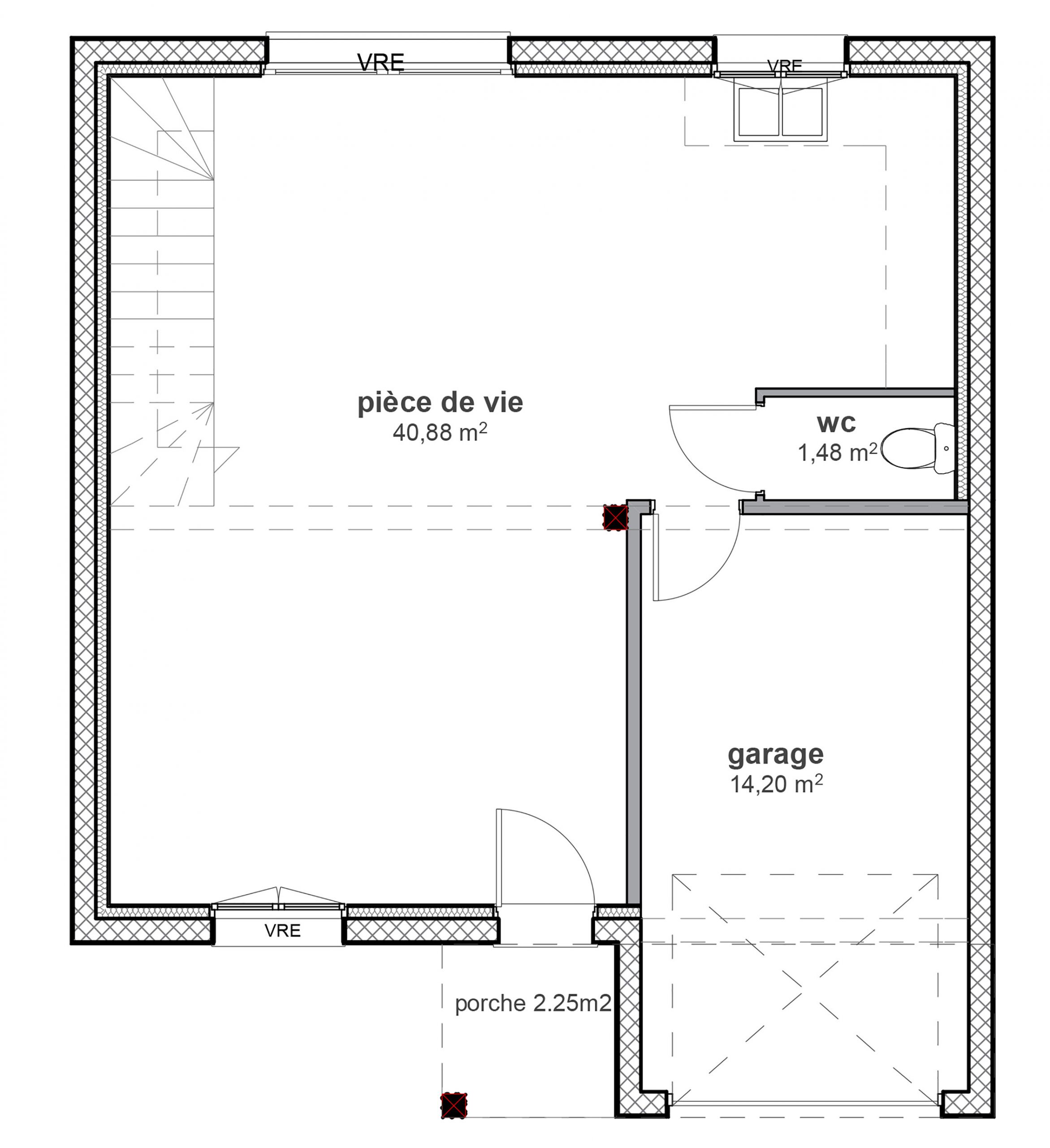
Dès l’entrée le modèle de maison Toura vous offre un vaste espace salon / salle à manger / cuisine de plus de 40 mètres carrés. La porte-fenêtre de la salle à manger vous permet d’accéder facilement à votre terrasse. Un espace intimiste baigné de lumière, idéal pour organiser des repas conviviaux. Depuis l’espace cuisine vous accédez également au garage de plus de 14 m2. Une configuration parfaite notamment pour ranger facilement vos courses alimentaires. A l’étage, les trois chambres de 9,23, 11,24 et 12,08 m2 sont pensées pour accueillir toute la famille. Elles disposent également de grandes fenêtres pour une luminosité optimale. La chambre parentale d’un peu plus de 12m2 est quant à elle dotée d’un dressing de 4,66 m2. De quoi créer un espace de détente confortable et fonctionnel. La grande salle de bains de plus de 7 m2 est également pensée pour les familles. Elle permet d’éviter les embouteillages le matin avec son WC, sa grande vasque, sa douche et sa baignoire. Nous vous invitons donc à découvrir ce modèle de maison individuelle de moins de 90 m2 vous offrant tout l’espace et le confort dont vous avez toujours rêvé.

Plan de maison à étage traditionnelle -RDC - 04 Maisons Du Lyonnais

  • Plan de maison à étage traditionnelle -RDC - 04 Maisons Du Lyonnais
  • Plan de maison à étage traditionnelle - R1 - 04 Maisons Du Lyonnais

CES MODÈLES DE MAISONS AVEC PLANS VONT VOUS INTÉRESSER !

3D
MODÈLE DE MAISON MAGNOLIA : UN LOOK CLASSIQUE TOUT EN MODERNITÉ

Modèle Magnolia

PERSONNALISABLE

MAISON MODÈLE TRADITIONNEL

Plain-pied < 90 m2 95 m2 100 m2 3 ch.
MODÈLE DE MAISON MELEZZA : UN STYLE MODERNE ET AFFIRMÉ

Modèle Melèzza

PERSONNALISABLE

MAISON MODÈLE TRADITIONNEL

Plain-pied 95 m2 3 ch.
MODÈLE DE MAISON MELODIA : LE CHARME DU SUD ALLIÉ AU CONFORT MODERNE

Modèle Melodia

PERSONNALISABLE

MAISON MODÈLE TRADITIONNEL

Plain-pied 100 m2 3 ch.
3D
MODÈLE DE MAISON EBÈNA : UN PLAN ORIGINAL RÉSOLUMENT MODERNE

Modèle Ebèna

PERSONNALISABLE

MAISON MODÈLE TRADITIONNEL

Plain-pied < 90 m2 95 m2 3 ch. 4 ch.
MODÈLE DE MAISON PHILA : UNE MAISON DE PLAIN-PIED HARMONIEUSE ET FONCTIONNELLE

Modèle Phila

PERSONNALISABLE

MAISON MODÈLE TRADITIONNEL

Plain-pied < 90 m2 3 ch.
MODÈLE DE MAISON URBA : UN STYLE TRADITIONNEL TRÈS ACCUEILLANT

Modèle Urba

PERSONNALISABLE

MAISON MODÈLE TRADITIONNEL

Étage < 90 m2 3 ch.
3D
MODÈLE DE MAISON COCOONA : UN ESPRIT CHALEUREUX DANS UNE CONSTRUCTION MODERNE

Modèle Cocoona

PERSONNALISABLE

MAISON MODÈLE TRADITIONNEL

Plain-pied < 90 m2 3 ch.
MODÈLE DE MAISON TILA : MAISON PROVENÇALE AVEC GARAGE EN SOUS-SOL

Modèle Tila

PERSONNALISABLE

MAISON MODÈLE TRADITIONNEL

Étage 95 m2 3 ch.

Vous avez un projet de construction en Auvergne-Rhône-Alpes ?

Maisons du Lyonnais, constructeur de maisons individuelles depuis plus de 20 ans en région Auvergne-Rhône-Alpes, vous accueille dans son agence de Vaulx-en-Velin à côté de Lyon dans le département du Rhône.

Vous avez un projet de construction à Vienne (38) ou Bourgoin-Jallieu (38) en Isère, L'Arbresle (69), Anse (69) ou Belleville (69) dans le département du Rhône, les communes de Meximieux (01), Villars-les-Dombes (01), Beynost (01) ou Ambérieu-en-Bugey (01) dans le département de l'Ain. Nous nous chargerons de la conception de votre future maison contemporaine ou maison traditionnelle, de plain-pied ou en R+1, en accord avec notre bureau d'études et en conformité avec la RE 2020 et RT 2012. Avec Maisons du Lyonnais, vous serez les futurs propriétaires d'une maison neuve dans le Lyonnais ou la Plaine de l'Ain.

Maisons du Lyonnais vous accompagne dans la globalité de votre projet de construction en région Auvergne-Rhône-Alpes : de la recherche de votre terrain, au plan de financement jusqu'à la remise des clés de votre maison sur-mesure ! Faire confiance à un constructeur de maisons individuelles, c'est faire le choix d'obtenir toutes les garanties liées à votre contrat de construction de maisons individuelles (CCMI).

INSCRIVEZ-VOUS À NOTRE NEWSLETTER

Suivez-nous sur les réseaux sociaux :  

Topscroll
Topscroll