CONSTRUCTEUR DE MAISONS
en Auvergne-Rhône-Alpes [Rhône - Ain - Isère - Loire]

Plus de 10 000 maisons neuves construites dans le Grand-Sud

Topscroll

RECHERCHER...

Par référence :

Critères avancés :

Maison contemporaine Boha

Une maison design au style affirmé

Vous rêvez de vivre au sein d’une maison digne des plus grandes stars californiennes ? C’est désormais possible grâce au modèle de maison Boha. Laissez-vous séduire par sa façade aux lignes épurées qui accorde une place de choix aux baies vitrées XXL. Côté conception, la maison Boha vous propose également un plan original et très confortable qui se compose de deux blocs réunis par un couloir. Le premier est consacré à la pièce de vie d’une surface exceptionnelle. Si vous aimez recevoir, alors tout est fait pour vous séduire. La cuisine ouverte vous permet d’imaginer un aménagement de grande qualité avec de nombreux rangements est un vaste îlot central. Vous disposez également de beaucoup d’espace de stockage avec le cellier astucieusement placé entre le garage et la cuisine. Dans le second bloc destiné au coin nuit vous bénéficiez de 5 chambres dont une suite parentale complète. Une grande salle de bains et un deuxième WC indépendant sont également proposés à ce niveau.

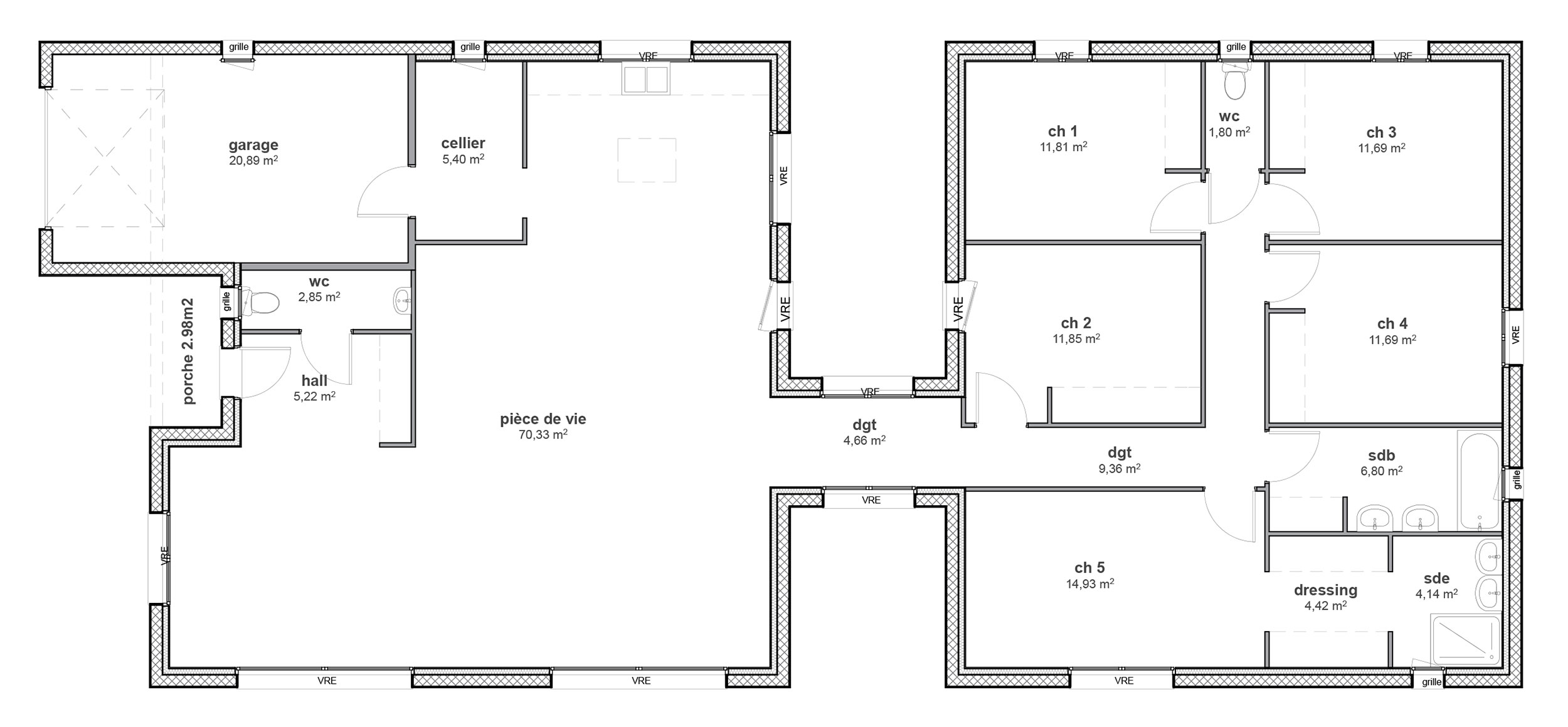
Plan en 2D du modèle Boha

D’une surface supérieure à 110 m², le modèle de maison Boha a tout pour vous convaincre. Dès l’entrée vous accédez à un hall accueillant qui vous donne accès à la pièce de vie de plus de 70 m². Salon, salle à manger, cuisine ouverte américaine, coin détente, etc. vous pouvez imaginer l’aménagement de vos rêves dans cet espace exceptionnel. Ce niveau dispose également d’un WC séparé ainsi que d’un cellier qui donne accès au garage de plus de 20 m². Côté nuit, 5 chambres vous attendent dont une suite parentale avec dressing et salle d’eau. Un espace de plus de 23 m² dédié à la détente. Les 4 autres chambres proposent également une surface agréable de plus de 11 m². Cet espace nuit est également doté d’un WC séparé et d’une salle de bains avec double vasque, baignoire et rangements.

Modèle de maison Boha - plan maison 4 chambres - MDL

Visite virtuelle du modèle Boha

N’attendez plus et découvrez le modèle de maison Boha comme si vous y étiez. Grâce à cette visite virtuelle vous pouvez vous imaginer sur votre future terrasse face à votre piscine contemporaine. Une fois à l'intérieur vous pénétrez dans une pièce de vie aux nombreux atouts. Imaginez facilement l’emplacement de vos propres meubles et de votre décoration. Une visite qui vous aide à vous projeter dans un univers qui vous ressemble. Visitez également les chambres baignées de lumière qui proposent une surface très confortable. N’oubliez pas la suite parentale avec sa chambre spacieuse dont la baie vitrée donne sur la terrasse. Observez aussi les volumes du dressing et de la salle d’eau de cette suite de star. Vous souhaitez en savoir plus sur le modèle de la maison Boha ? N’hésitez pas à nous contacter et à nous demander un plan personnalisé. Nous réalisons toutes vos envies.


CES MODÈLES DE MAISONS AVEC PLANS VONT VOUS INTÉRESSER !

MODÈLE DE MAISON TILA : MAISON PROVENÇALE AVEC GARAGE EN SOUS-SOL

Modèle Tila

PERSONNALISABLE

MAISON MODÈLE TRADITIONNEL

Étage 95 m2 3 ch.
MODÈLE DE MAISON TOURA : UNE MAISON INDIVIDUELLE RÉSOLUMENT MODERNE

Modèle Toura

PERSONNALISABLE

MAISON MODÈLE TRADITIONNEL

Étage < 90 m2 3 ch.
MODÈLE DE MAISON URBA : UN STYLE TRADITIONNEL TRÈS ACCUEILLANT

Modèle Urba

PERSONNALISABLE

MAISON MODÈLE TRADITIONNEL

Étage < 90 m2 3 ch.
MODÈLE DE MAISON PHILA : UNE MAISON DE PLAIN-PIED HARMONIEUSE ET FONCTIONNELLE

Modèle Phila

PERSONNALISABLE

MAISON MODÈLE TRADITIONNEL

Plain-pied < 90 m2 3 ch.
3D
MODÈLE DE MAISON EBÈNA : UN PLAN ORIGINAL RÉSOLUMENT MODERNE

Modèle Ebèna

PERSONNALISABLE

MAISON MODÈLE TRADITIONNEL

Plain-pied < 90 m2 95 m2 3 ch. 4 ch.
3D
MODÈLE DE MAISON MAGNOLIA : UN LOOK CLASSIQUE TOUT EN MODERNITÉ

Modèle Magnolia

PERSONNALISABLE

MAISON MODÈLE TRADITIONNEL

Plain-pied < 90 m2 95 m2 100 m2 3 ch.
MODÈLE DE MAISON MELODIA : LE CHARME DU SUD ALLIÉ AU CONFORT MODERNE

Modèle Melodia

PERSONNALISABLE

MAISON MODÈLE TRADITIONNEL

Plain-pied 100 m2 3 ch.
MODÈLE DE MAISON MELEZZA : UN STYLE MODERNE ET AFFIRMÉ

Modèle Melèzza

PERSONNALISABLE

MAISON MODÈLE TRADITIONNEL

Plain-pied 95 m2 3 ch.

Vous avez un projet de construction en Auvergne-Rhône-Alpes ?

Maisons du Lyonnais, constructeur de maisons individuelles depuis plus de 20 ans en région Auvergne-Rhône-Alpes, vous accueille dans son agence de Vaulx-en-Velin à côté de Lyon dans le département du Rhône.

Vous avez un projet de construction à Vienne (38) ou Bourgoin-Jallieu (38) en Isère, L'Arbresle (69), Anse (69) ou Belleville (69) dans le département du Rhône, les communes de Meximieux (01), Villars-les-Dombes (01), Beynost (01) ou Ambérieu-en-Bugey (01) dans le département de l'Ain. Nous nous chargerons de la conception de votre future maison contemporaine ou maison traditionnelle, de plain-pied ou en R+1, en accord avec notre bureau d'études et en conformité avec la RE 2020 et RT 2012. Avec Maisons du Lyonnais, vous serez les futurs propriétaires d'une maison neuve dans le Lyonnais ou la Plaine de l'Ain.

Maisons du Lyonnais vous accompagne dans la globalité de votre projet de construction en région Auvergne-Rhône-Alpes : de la recherche de votre terrain, au plan de financement jusqu'à la remise des clés de votre maison sur-mesure ! Faire confiance à un constructeur de maisons individuelles, c'est faire le choix d'obtenir toutes les garanties liées à votre contrat de construction de maisons individuelles (CCMI).

INSCRIVEZ-VOUS À NOTRE NEWSLETTER

Suivez-nous sur les réseaux sociaux :  

Topscroll
Topscroll